文章来源:建筑工程鲁班联盟
本文中配电箱(柜)适用于施工现场及户外临时用电,应满足“三级配电、二级漏保、一机一闸、一漏一箱”配电及保护的使用要求。配电箱(柜)、开关箱的材质选用、制作工艺、箱内电气元件的选择、配置应符合国家相关标准,产品应通过CCC认证。配电箱(柜)的壳体采用冷轧钢板制作,箱体设计为户外使用型,满足防雨、防尘要求,箱体钢板厚度符合JGJ46-2005标准要求(≥1.2mm)。
三级配电箱标准化配置
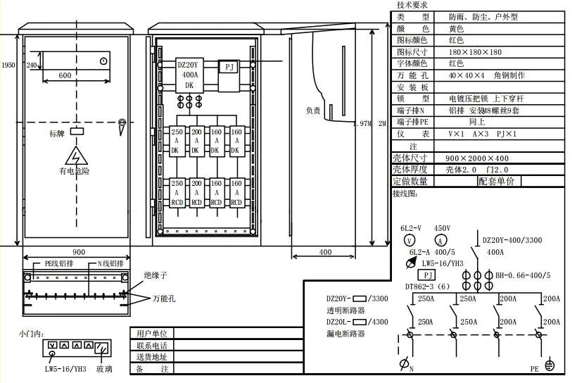
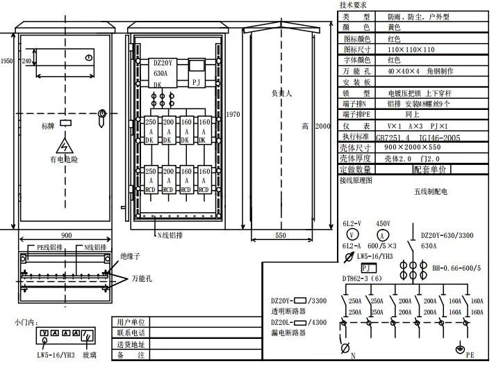
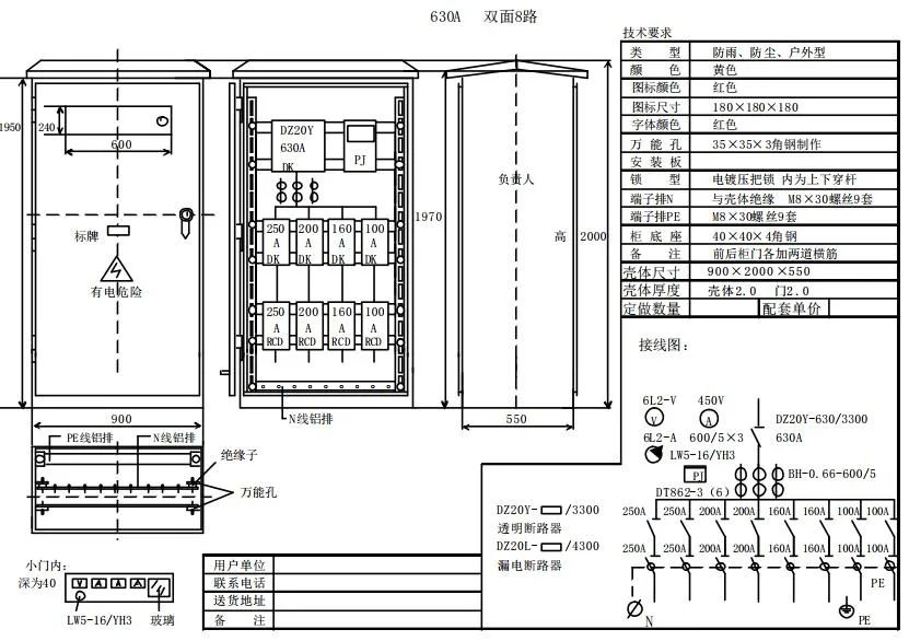
也称一级配电箱(柜),内设400A-630A具有隔离功能的DZ20型透明塑壳断路器作为主开关,分路设置4-8路采用具有隔离功能的DZ20系列160A-250A透明塑壳断路器,配备DZ20L(DZ15L)透明漏电开关或LBM-1系列作为漏电保护装置,使之具有欠压、过载、短路、漏电、断相保护功能,同时配备电度表、电压表、电流表、两组电流互感器。漏电保护装置的额定漏电动作电流与额定漏电动作时间的乘积不大于30mA.S。建议选用额定漏电动作电流75-150mA,额定漏电动作时间大于0.1S小于等于0.2S,其动作时间为延时动作型。

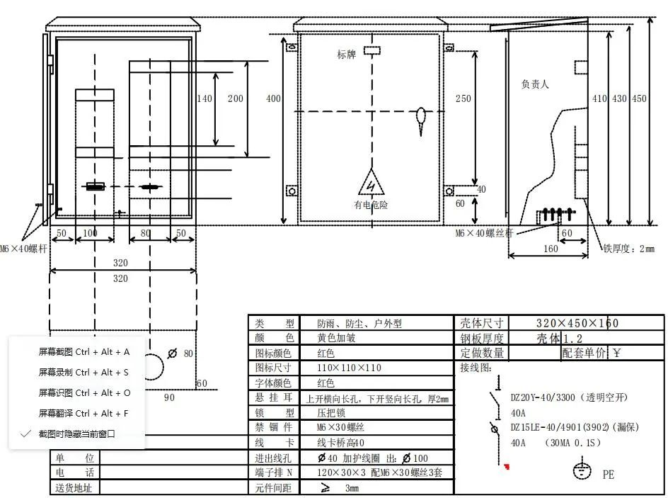
总配电箱示意图

总配电箱柜门电气连接节点示意图

总配电箱端子板节点示意图

400A四回路总配电柜电气系统图

630A六回路总配电柜电气系统图

630A八回路总配电柜电气系统图

管理标识牌
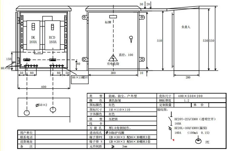
又称二级配电箱,内设200-250A具有隔离功能的DZ20系列透明塑壳开断路器,作为主开关(与总配电箱分路设置断路器相适应);采用DZ20或KDM-1型透明塑壳断路器作为动力分路、照明分路控制开关;各配电回路采用DZ20或KDM-1透明塑壳断路器作为控制开关;PE线连线螺栓、N线接线螺栓根据实际需要配置。

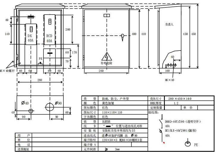
分电箱示意图

分电箱PE、N线端子板节点图

分电箱箱门电气连接节点图

分电箱电气系统图

管理标识牌
也称三级配电箱,按“一机一闸一漏一箱”设置。
1、电焊机开关箱
内设DZ20-100/2系列或KDM1-100/2(100A/380V)塑壳断路器作为控制开关,DZ15LE-100/2(DZ20L-100/2)或LBM-1-100/2(100A)漏电断路器,BFGD系列二次侧防触电保护器,PE端子排位3个接线螺栓。

电焊机开关箱示意图

电焊机开关箱PE端子板、箱门电气连接点图

电焊机开关箱电气系统图
2、大型设备动力开关箱
内设KDM1或DZ20(63A以上、380V)系列透明塑壳断路器作为控制开关,配置DZ15LE、DZ20L系列透明漏电断路器或LBM-1系列漏电断路器;PE线端子排为3个接线螺栓。

大型设备开关箱示意图

大型设备开关箱示意图
3、3.0kW以下、5.5kW以上用电设备开关箱
3.0kW以下:内设KDM1或DZ20(20-40A、380V)透明塑壳断路器为控制开关,配置DZ15LE、DZ20L或LBM-1(16-20A)系列漏电断路器,PE线端子排为4个接线螺栓。
5.5kW以上:根据所控制设备额定容量选择控制开关及漏电断路器。控制开关为DZ20或KDM1系列透明塑壳断路器,漏电断路器为DZ15L、DZ20L或LBM-1系列;PE线接线螺栓为3个。

设备开关箱示意图

设备开关箱端子板、箱门电气连接点图

设备开关箱系统图
4、照明开关箱
内设KDM1-T/2(20-40A)断路器,配置DZ15L-20-40/290漏电短路器,PE线螺栓为3个。

照明开关箱示意图

照明开关电气系统图
注:开关箱中漏电断路器必须选择额定漏电动作电流不大于30mA,额定漏电动作时间不大于0.1S,电流速断、电磁式电动机保护用产品。总配电箱中漏电断路器应选用配电保用产品。

管理标识牌
配电箱基本技术要求
(一)配电箱(柜)的生产制造应符合GB7251.4《低压成套开关设备和控制设备》第四部分建筑工地用成套设备(ACS)的特殊要求及JGJ46《施工现场临时用电安全技术规范》的标准要求。
(二)配电箱(柜)、开关箱安装使用应符合JGJ46《施工现场临时用电安全技术规范》标准及GB/T13869《用电安全导则》标准化要求。
(三)配电箱(柜)、开关箱应分设N线、PE线端子板,进出线必须通过端子板做可靠连接。N线端子板必须与金属电器安装板绝缘;PE线端子板必须与金属电器安装板做电气连接。进出线中的N线必须通过N线端子板连接;PE线必须通过PE线端子板连接。PE线与端子板连接必须采用电气连接,电气连接点的数量应比箱体内回路数量多2个,1个为PE线进箱体的连接点,1个为重复接地的连接点。
电器元器件应选用符合GB/4048.2、GB6829以及JGJ46标准的产品。
以上内容来源于网络收集整理,如有侵权请联系客服