文章来源:建筑工程鲁班联盟

源自丨南通二建集团技术服务平台

地库机电管线涉及专业繁多,针对管线及支吊架进行合理的深化设计,可以提高工程品质、降本增效。下面就基于工程实例, 看一看深化设计如何实施?


本工程建设用地面积17749平方米,项目总投资5亿,由A、B两栋塔楼、裙房及地下车库组成,总建筑面积96500平方米,地上面积约69100平方米,地下建筑面积约27400平方米,塔楼地上21层,裙房4层,地下2层,建筑总高度95.7米。

项目效果图


地库机电管线深化内容


地库管线深化内容介绍


深化设计的过程与原则


1
机电管线深化设计的目标


深化设计的目标是:提高工程品质、优化管线排布、加快进度、降低成本。
(1)合理布置各专业管线,最大限度的增加建筑使用空间,减少由于管线冲突造成的二次施工。
(2)合理排布设备间,协调设备、机电管线与土建、装饰专业的施工。保证设备的运行维修、安装等工作有足够空间。
(3)确定管线路由,精确定位预留洞口和套管,减少对结构施工的影响。
(4)弥补原设计不足,减少因此增加的额外工程成本。

(5)完成竣工图的制作,及时收集和整理施工图的各种变更通知单。在施工完成后,绘制出完成的竣工图,保证竣工图具有完整性和真实性。


2
机电管线深化设计的任务


深化设计到主要任务是:解决复杂部位的碰撞问题,优化净高,明确各专业走向优化路由。通过对净高、走向、复杂节点的优化深化,为施工、使用、维修创造有利条件。

深化设计最后的形式有三维模型和二维施工图纸,随着BIM技术的发展建议施工员、工长和班组长应该要掌握BIM技术,这样更加有利于高大难项目的施工。


3
深化设计原则


(1)明确各机电专业的施工界面(有条件的由总包进行综合支架制作与安装)。
(2)保持原设计的基础上,优化管线走向。
(3)尽量考虑较低成本方案。

(4)尽量考试施工和使用方便。


4
管线排布避让原则


(1)小管让大管:小管避让增加的费用小。
(2)临时让永久:临时管道使用完后,需要拆除。
(3)新建让已有:已经安装好的旧管道正在试用,更改较麻烦。
(4)有压让重力:重力流管道改变坡度困难。
(5)金属让非金属:金属管道容易弯曲、切割和连接。
(6)冷水让热水:从工艺和节约的角度,热水管道短,更有利。
(7)给水让排水:排水管为重力流,有坡度要求,敷设时受到限制。
(8)低压让高压:高压管道施工技术要求高,造价高。
(9)气体让液体:水管比气管造价高,水比气流动动力费用更大。
(10)附件少让多:阀门管件少的让管件多的。
(11)桥架让水管:电安装维修方便、费用低。
(12)弱电让强电:弱电让强电。弱电导线更小,便于安装,费用低。
(13)水管让风管:风管一般较大,占空间大,从工艺和节约考虑。

(14)热水让冷冻:冷冻管比热力管道要求更短,造价更高。


5
管线排布方法


(1)归拢主干管线,然后次支管线:有机械车位的排布在车道上,牺牲车道空间;若没有机械车位,排布在车位上空,牺牲车位净高;若整体地下室净高条件较低,优先牺牲车位上净高。
(2)定位排水管(无压管):排水管为无压管,不能上下翻转,应保持直线,满足坡度。一般应将其起点(最高点)尽量贴梁底(优先考虑梁内预埋,起点距离板下5~10cm),使其尽可能提高。
(3)定位风管(大管):各类风管尺寸比较大,需要较大的施工空间,所以接下来应定位各类风管的位置。风管上方有排水管的(尽量避开排水管,并排处理),安装在排水管之下;风管上方没有排水管的,尽量贴梁底安装。
(4)确定了无压管和大管的位置后,余下的就是各类有压水管,桥架等管道。此类管道一般可以翻转弯曲,布置较灵活。其中要注意矿物绝缘电缆的路径和电缆选择,条件允许建议采购柔性矿物绝缘电缆。
(5)成排的桥架、管道的外壁之间预留100mm~150mm,要注意管道和风管的保温厚度、桥架的弯曲半径。
(6)检修和上人空间≥400mm。

所述为管线布置基本原则,管线综合协调过程中根据实际情况综合布置。


项目主要应用点


1
图纸会审


通过建模和深化,记录过程中发现的图面和设计问题,整理成问题报告作为图纸会审的一部分。除了管线密集无法施工、净高不满足等问题外,还有以下几点需要注意:
总图:①做地库深化的时候一定要看室外的总图,进户的标高和位置是否和地库图纸一致。②排水管标高和地库顶板是否有冲突。
电气专业:①建筑底图是否和建筑图纸一致。②图面标记是否齐全。③预埋的电气管是否有SC50/SC65等大管径,预埋管或预埋线管密集保护层无法达到要求建议调整为桥架。④人防通道口防护墙上是否有电气预留的带丝口套管。⑤配电箱、控制箱位置是否有不合理的位置。⑥火灾报警点位与给排水和强电位置是否一致。⑦强电井内竖向留洞是否满足桥架弯曲半径施工或母线槽插接箱安装空间。配电间内的配电箱布置能否排开,门的开启方向是否与配电箱、柜交叉。⑧变电站的进户套管数量和位置是否满足需求。⑨防雷接地图中出外墙金属管道处、卫生间、大型设备、桥架起点终点处、电梯机房、配电间、变电站等接地点是否有遗漏。⑩防火卷帘的卷帘盒、人防门、防火门的开启与桥架或配电箱是否有冲突。
通风与空调专业:①建筑底图是否和建筑图纸一致。②图面标记是否齐全。③风机房内是否缺少必要的剖面详图。④穿越楼板、防火隔墙处的防火阀、正压送风系统的泄压阀是否有遗漏。⑤冷凝水的排放是否有序。⑥设备编号是否有序完整无重复。⑦风口的形式和尺寸是否都明确。⑧竖向风道的做法是钢板还是采用土建风道。⑨机房内的设备布置能否满足施工和检修,阀部件的设置是否合理。⑩地库各个通风系统是否都与室外连通,出地面位置是否合理。
给排水专业:①建筑底图是否和建筑图纸一致。②图面标记是否齐全。③是否所有的排水都出室外,进入地库的排水是否都有提升装置。④压力排水、雨水等各个系统图是否对应和完整。消防电梯基坑是否设置了排水措施。⑤集水坑位置是否与土建承台、机械车位等碰撞⑥热水系统是否设置了有效的循环系统。⑦泵房、湿式报警阀间、垃圾站、隔油间等有用水房间是否都设置了排水沟或地漏。⑧水泵房是否布置合理,预留检修空间是否合理。⑨消防泵房内是否设置了减压、泄压、水锤消除器等安全装置。
各专业之间:①关联点位是否一致(配电箱、消火栓、防火阀点位等)。②变电站、配电房等是否有无关的管道穿越。③风机房的门是否与风口,风管冲突。出空调机房处的风管位置是否穿土建砌筑墙体的构造柱。④防火卷帘上空是否与管线冲突。⑤大型管道安装处是否考虑了结构的承载能力。

问题报告


2
地库管线排布


本项目为办公写字楼,机电系统主要包含:强电、弱电、通风、排烟、正压送风、消火栓系统、喷淋系统、给水、排水、压力排水、地库冲洗。
各专业排布心得:①机械车位保障3.6米以上净高。②设计院的深化≤DN50的管线不做考虑,本次只要涉及综合支架的管线都需要进行优化。这也说明综合管线优化本质不只是管线的排布,更是综合支架的方案设计。③管线排布一般都需要进行3遍以上修改,自己改一遍。和其他同事相互检查再优化一次,最后会议讨论再调整一次。因为自己改的一遍其实还有很多“节点”还没有打开或捋顺。只有通过检查才能更加完善。④复杂节点可以进行全专业讨论,或许在建筑或者结构专业那就很好解决。这也要求管线优化需要具备一定的建筑结构的知识。
深化设计常见问题:①走道内排布未考虑风口。②原设计为普通灯具的管线排布后要改为线槽灯的未考虑线槽灯安装位置。③未考虑喷淋支管的安装空间。④未考虑阀门安装和操作空间。
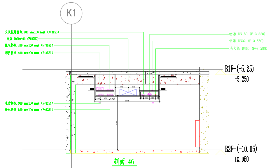
负一层机电管线排布

负二层机电管线排布


3
支吊架深化设计


为什么要进行支吊架的深化设计呢,不能按照图集选用吗?图集的支吊架都是单专业的;图集最多三根管道现场多达十几根;图集一般采用角钢或吊杆,现场综合支架多采用槽钢。所以针对项目综合支架制作无图集可以参考。
(1)综合支架布置依据:根据规范查找各管线的最大间距,综合支架排布的间距可以比最大间距要求小,但不能大于最大间距。
①桥架:水平安装的支架间距宜为1.5~3m,垂直安装的支架间距不应大于2m。
②风管:水平安装直径或长边≤400mm时,支架间距≤4m;直径或长边>400mm时,支架间距≤3m;薄钢板法兰风管的支吊架间距≤3m;垂直安装时,应设置至少2个固定点,之间间距≤4m。
③沟槽管道的支吊架间距不应大于下表规定:
沟槽式连接管道的支吊架间距
④钢管水平安装的支吊架间距不应大于下表规定:
钢管水平安装支吊架间距
综合支架荷载都比较大,优先选择挂梁(固定在梁中上部位),其次选择固定在板上。为了尽可能多的固定在梁上,就必须考虑结构轴网间距,本项目大部分轴网间距8.4米,中间有一根次梁。
综上确定综合支架的布置间距为2.1米。在轴网间距不是8.4米区域,通过主梁和次梁进行布置后做等间距布置。
如果优先考虑成本,综合支架可以按照管道和风管的最大间距布置,桥架支架间距不满足的地方用单独的吊架再补充。
(2)支架型钢选型
本项目无空调水管,主要考虑DN150。综合支架间距只有2.1米对于管道专业已经很密集,所以选型上比常规项目偏小。荷载更大的建议采用落地式支架。
支吊架选型
在管线综合排布结束的基础上进行综合支架的深化设计工作。
地库负一层支架布置
地库负二层支架布置
BIM剖面

支架图


4
预留套管、结构留洞出图


在管线综合排布结束的基础上进一步对一结构留洞和设置套管进行深化设计。通过深化后的管线位置确定套管和留洞位置。并复核原设计套管做法是否满足规范要求。重点检查出户和穿越人防区域的套管。
地库负一层套管定位及加工图
地库负一层套管图局部
地库负二层套管定位及加工图
地库负二层套管图局部
地库负一层结构留洞图
地库负一层结构留洞图局部
地库负二层结构留洞图

地库负二层结构留洞图局部


应用总结


(1)综合支架的固定点位置优先考虑在主次梁上,支架根部避免固定在梁下(梁下侧钢筋密集膨胀螺栓不易固定)。
(2)项目均需进行支吊架计算,并上报监理。
(3)建议综合支架由总包制作安装,并做好与业主、管理公司的沟通。同时做好深化设计图纸报监和管线深化方案的报监工作,依次作为签证依据。
(4)机电管线深化工作越早开始效果越好,调整空间也越大。针对业主变更和调整的,各阶段的成果可以作为签证依据。
(5)作为总包要重视机电专业的重要性,在重视土建的总包方,后期对其他专业机电的管控上经常力不从心。

(6)机电深化人员必须不断提高自身专业水平,通过掌握土建、装饰、钢结构等其他专业的知识,这样才能更深入一个层次进行优化。

以上内容来源于网络收集整理,如有侵权请联系客服