机电安装工程的消声减振对象包括设备和管道两方面,既要防止包括制冷机组、空调机组、水泵、风机等设备产生较大振动和噪声,也要防止管道传播设备及自身产生的振动和噪声。本文从设施及工艺两个方面,总结了机电安装工程在水泵、空调机组、排风排烟机组、冷冻机组、管道各专业上的常用消声减震做法,全面!
一
消声减振设施
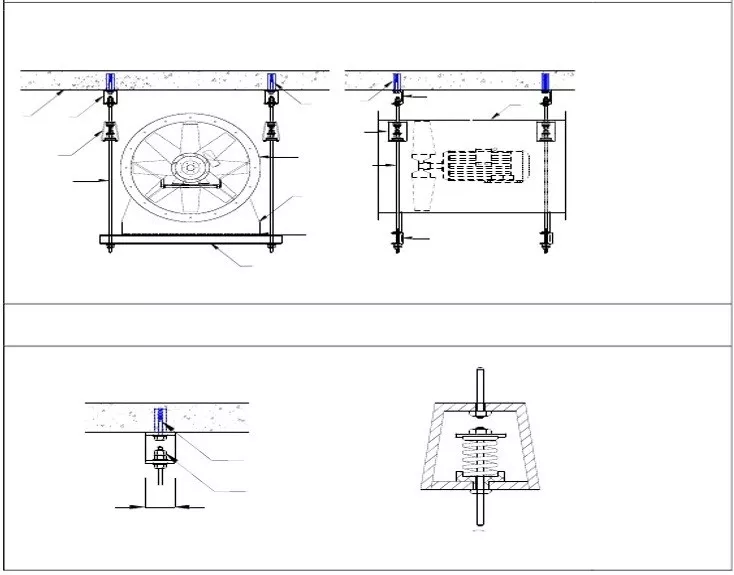
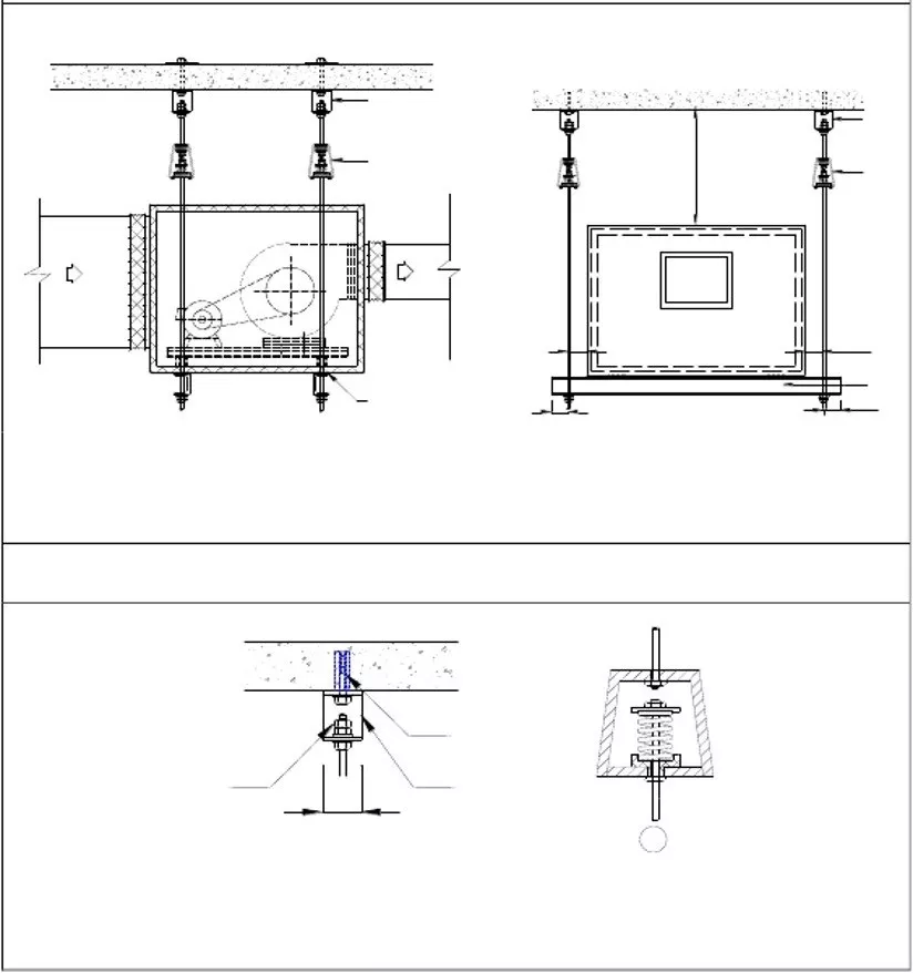
· 自立式弹簧隔振器




· 限位式弹簧隔振器

· 防振吊钩



· 聚氯丁橡胶水管柔性接头

· 不锈钢水管柔性接头/连接器



· 防振垫片


· 消声止回阀


· 管路DT型减振器

· 风管柔性接头

· 消声器或者消声静压箱


二
消声减振工艺
1
水泵消音隔振处理

卧式水泵隔振处理图

水泵减震台座减震形式

泵房隔振示意图

浮筑基础



用混凝土制作水泵惯性块与减震器固定在一起

设备底部橡皮减震垫块设置

金属阻尼减震器

设备底部阻尼弹簧减震器设置

设置在设备底板两侧防位移的“靠山”

立式水泵隔振处理图



变频供水系统减振处理
2
空调机组消音隔振处理
· 吊装式空调机组减振处理


备注:风量大于8000m³/h的机组不宜采用吊顶式安装方式,推荐采用落地放置,否则应采取严格的减噪措施。




· 落地式空调机组减振处理



设备底部阻尼弹簧减震器设置
3
排风排烟机消音隔振处理
· 落地式风机

屋顶落地式风机安装示意图

弹簧隔振器

阻尼弹簧减震器
· 吊式轴流风机安装

· 轴流风机防振吊钩

· 吊式风机箱安装

· 风机震动噪音处理




为防止轴流风机工作时摆动,用槽钢做成框架固定在楼板上,图为排风兼排烟风机下部设置阻尼弹簧减震器
4
冷冻机组消音隔振处理

设备底部金属弹簧减震器设置

冷水机组底座设置弹簧减震器,落地支架应安装在柔性短管的后侧

在弹簧减震器下部设置水平度调整钢板,便于设备一次就位
5
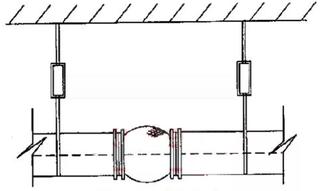
设备管道减振降噪


管道穿墙(板)处采用柔性材料填塞套管/管道间缝隙大样

吊装式管道减震


全不锈钢波纹补偿器

穿墙处金属软接
· 管道管夹消音隔振处理



· 立管消音隔振处理


· 管道落地支撑支架减震处理

· 管道消声处理



金属软接

金属软管

波纹补偿器

橡胶软接头

管道减振-橡橡胶减震垫

防水帆布接头


风管与风机应采用柔性短管连接



静压箱
· 冷却塔消声处理


· 中央空调外机降噪

机电安装工程设计中对消声减震的具体措施的简要归纳:
1. 建筑机电工程中,除了对风机、水泵等产生振动的设备设置弹性减振支座外,还应在风机与管路之间采用软管链接,软管宜采用人造材料或帆布材料制作。
2. 水泵、冷水机组、风机盘管、空调机组等机电设备与水管之间用软管连接,不使振动传递给管路。软管有两类:橡胶软接管和不锈钢波纹管。橡胶软接管隔振减噪的效果很好,缺点是不能耐高温和高压,耐腐蚀性也差。在空调与采暖的水系统中多用橡胶接管。不锈钢波纹管能耐高温、高压和耐腐蚀,但价格较贵,一般用于制冷剂管路的隔振。
3. 在管路的支吊架、穿墙处使用非燃软性材料填充做减振处理。
4. 空调机组、水泵落地式设备可直接采用橡胶隔振垫隔振或弹簧复合减震器。
5. 振动较大的设备(如风机)吊装时,采用减振吊钩。
6. 选用高效、低噪声水泵、风机,并使水泵、风机在最高效率点附近运行。
7. 按噪声标准控制风管、风口风速,以满足房间噪声要求。
8. 设备机房内壁表面贴附吸声材料及吸声孔板,机房门采用消声密闭门,使墙体有吸声能力,等等。