2020年1月5日15时30分左右,位于江夏区五里界天子山大道1号的武汉巴登城生态休闲旅游开发项目一期一(1)二标段发生一起较大坍塌事故,造成6人死亡,6人受伤。
近期,武汉市应急管理局公布《江夏区武汉巴登城生态旅游开发项目一期 一(1)二标段“1·5”较大坍塌 事故调查报告》。
事故直接原因
门楼高大模板支撑体系架体未按照施工方案要求进行搭设,⑯轴线处400x1200梁支架沿梁跨度方向扫地杆、第一步水平杆缺失,使得水平杆步距超过方案设计步距的两倍以上,致使梁支架的稳定性不满足设计承载要求,且门楼高大模板支撑体系在搭设完毕后未按要求进行验收。
现场在进行浇筑时,违反专项施工方案中采用对称浇筑的要求,对门楼坡屋面采用不对称浇筑,实际产生的附加弯矩增加了B轴线处400x2560梁支架立杆承受的压力,导致该处梁支架稳定性不满足设计承载要求。
现场浇筑完竖向结构(KZ1和KZ3两根框架柱)后,未按照方案中“竖向结构强度达到50%以后,再浇水平构件”的要求,随即开始梁板浇筑,由于竖向结构强度不够,B轴线处400x2560梁钢筋随支架变形下挠,将框架柱拉倒,增加了事故的规模和惨烈程度。
事后,经对现场高大模板支撑体系架体材料(钢管、扣件、可调顶托)进行取样,并送检,发现部分材料不合格,导致架体承载力及稳定性低于专项方案的设计预期。
上述原因叠加,导致事故发生。
救援结束后事故现场图
事故间接原因
1.施工单位:
未严格审核劳务公司相关建设施工劳务作业资质,把劳务工程发包给不具备安全生产条件的劳务单位(分包劳务内容为木工、泥工、钢筋工、架子工、水电工、油漆工、电焊工等图纸设计范围内所需工种工作)。
未严格按照方案要求进行高大模板支撑体系搭设,在强度未达到要求的情况下即开始上部梁板的混凝土浇筑。
高大模板支撑体系架体部分钢管、扣件、可调顶托等材料不合格。
盲目组织现场施工,在总监理工程师未签署浇筑令的情况下违规组织浇筑施工作业。
项目安全员未取得相关安全管理资格等。
2.项目劳务单位:
未取得建设施工劳务作业资质及安全生产许可证书,不具备承揽建设施工劳务工程的资格。
将劳务工程转包给个人劳务队伍,存在违法转包行为(与徐明灯、李大才、艾应龙、陈千榜、杨波浪、张宁等人分别签订了泥工、钢筋连接、钢筋植筋加固、模板、脚手架、钢筋工等劳务承包合同)。
未配备专职或者兼职的安全生产管理人员,无相关安全教育培训和安全检查工作台账等。
3.监理单位:
项目监理人员未经监理业务培训,安全监理工作能力不足。
现场安全监理和巡查检查缺位,事故当天无监理人员在岗。
未及时发现和制止现场违规浇筑施工行为,未有效实施危险性较大的分部分项工程旁站监理等。
处理建议
1.建议移送司法机关追究刑事责任的人员
鉴于事故有关7名责任人未落实安全生产责任,造成人员伤亡惨重,财产损失重大,涉嫌刑事犯罪,建议由司法机关依法追究刑事责任。
2.建议给予行政处罚的单位和个人
根据《安全生产法》有关规定,建议由市应急管理局对事故责任单位和主要负责人实施行政处罚。
3.建议给予党纪政务处分的人员
对于在事故调查过程中发现的地方党委政府、行业主管部门和有关单位其他公职人员等5人在履职尽责方面的问题,已将相关线索移交武汉市纪委监委责任追究审查调查组,由纪委监委按照干部管理权限和相关责任追究的规定提出处理意见。
全文如下:
2020年1月5日15时30分左右,位于江夏区五里界天子山大道1号的武汉巴登城生态休闲旅游开发项目一期一(1)二标段发生一起较大坍塌事故,造成6人死亡,6人受伤。事故直接经济损失为1115万元。
根据《安全生产法》、《建筑法》、《生产安全事故报告和调查处理条例》(国务院令第493号)、《建设工程安全生产管理条例》(国务院令第393号)、《湖北省生产安全事故报告和调查处理办法》(省政府令第354号)等有关规定,由市应急管理局牵头,组织市公安局、市总工会、市城乡建设局等部门成立了武汉巴登城生态旅游开发项目一期一(1)二标段“1·5”较大坍塌事故调查组,对事故展开调查。同时,组织相关行业领域的专家进行了技术分析。调查组按照“四不放过”和“科学严谨、依法依规、实事求是、注重实效”的原则,通过现场勘验、调查取证,人员询问和综合分析,查清了事故发生经过、原因、人员伤亡和财产损失情况,认定了事故性质和事故责任,提出了对有关责任单位及责任人员的处理建议和事故防范措施。
一、事故工程及参建各方基本情况
(一)事故工程基本情况
事故项目为武汉巴登城生态旅游开发项目一期一(1)二标段,位于武汉市江夏区五里界天子山大道1号,主要建设1栋餐饮场所(地上2层),地下一层为停车库。总建筑面积为22048.09㎡,总建筑高度为24.8m,其中,地下一层建筑面积为11029.28㎡,地上二层建筑面积为11018.81㎡,层高6m。发生坍塌建筑为地上建筑门楼部分,建筑面积267.1㎡,横向跨度为20m,纵向跨度为21.3m,坡屋面结构坡度约为22.56度,层高8.8~11.5m。事发时现场正在进行饮食中心门楼坡屋面的混凝土浇筑。
(二)工程参建各方基本情况
建设单位为武汉巴登城投资有限公司,施工单位为山某建设集团有限公司,监理单位为湖北天成建设工程项目管理有限公司,劳务分包单位为湖北强国建筑劳务有限公司,商砼供应单位为武汉振新混凝土有限公司。
2019年3月,武汉巴登城投资有限公司与施工单位签订施工合同,主体工程为1栋饮食中心(2层)以及地下室,建筑面积共22048.09㎡,合同金额为7500万元。2019年11月,武汉巴登城投资有限公司与施工单位签订施工合同总价包干补充协议,包干总价约为3475万元。2019年2月,武汉巴登城投资有限公司与湖北天成建设工程项目管理有限公司签订监理合同,工程规模:总建筑面积22048.09㎡,合同金额约为23.4万元。2019年9月,施工单位与湖北强国建筑劳务有限公司签订了劳务分包合同,提供分包劳务内容为木工、泥工、钢筋工、架子工、水电工、油漆工、电焊工等图纸设计范围内所需工种工作。2019年9月30日,湖北强国建筑劳务有限公司与徐明灯、李大才、艾应龙、陈千榜、杨波浪、张宁等人分别签订了泥工、钢筋连接、钢筋植筋加固、模板、脚手架、钢筋工等劳务承包合同。2019年5月4日,施工单位与武汉振新混凝土有限公司签订了建设工程预拌混凝土供应合同,预拌混凝土供应总量约为1.3万m³,暂定总价为624万元。
二、事故发生经过及救援情况
(一)事故发生经过
2020年1月4日晚,施工单位项目负责人赵学、技术负责人陈天佑、施工员漆浩三人商量饮食中心门楼混凝土浇筑有关事宜。当晚,赵学联系湖北强国建筑劳务有限公司泥工班负责人徐明灯,问其是否有时间安排人员进行混凝土浇筑作业,徐明灯告知赵学第二天(1月5日)可以安排。随后,漆浩联系了武汉振新混凝土有限公司销售张小龙协商第二天的混凝土运送事宜,陈天佑联系湖北强国建筑劳务有限公司木工班郑海权,要求其安排2名木工第二天到浇筑现场进行模板加固。
1月5日8时左右,湖北强国建筑劳务有限公司泥工班康丕军、成少权、陈厚强、陈厚万、邓云华、钱学太、卢之田、徐名贵(女)、成儒美(女)等9人来到施工现场,卢之田负责在混凝土泵车上放料,其余8人负责在屋面进行浇筑混凝土。木工班陈振华、李小平两人在下方架体内观察混凝土浇筑时架体的状态,并处置异常情况。武汉振新混凝土有限公司混凝土泵车操作员徐启超在浇筑作业面操作混凝土泵车,负责遥控打泵。施工员漆浩在浇筑作业面负责现场施工管理。
如图1、图2(门楼立面示意图、平面示意图)所示,1月5日10时左右,完成KZ1框架柱的浇筑。10时30分,完成KZ3框架柱的浇筑。12时左右,完成A作业面浇筑。12时30分左右吃完午饭后,接着浇筑门楼四周大梁。14时50分左右,开始对B、C、D作业面进行浇筑,此时合计浇筑了160多m³混凝土(总浇筑量为180m³)。15时30分左右,在浇筑E作业面过程中,门楼中间部位(B作业面)突然塌陷,随即整个门楼全部垮塌,造成12名施工人员被困。事故发生后,现场人员立即拨打110、120、119等急救电话。
图1 门楼立面示意图
图2 门楼平面示意图
(二)事故救援情况
事故发生后,省、市领导高度重视,应急管理、建设、公安、消防、宣传、卫健等部门迅速赶到现场进行救援处置。
经现场全力救援,于1月5日18时30分左右,先后救出7人送往江夏区第一人民医院进行救治,其中1人经抢救无效死亡,6人受伤情况稳定。
1月6日凌晨1时20分至15时30分期间,先后救出5人,但现场确认已死亡。1月6日16时17分左右,现场经全面排查后确定无其他被困人员,搜救和清理工作全部结束。事故共造成6人死亡,6人受伤,直接经济损失约为1115万元。
1月6日16时17分左右,现场经全面排查后确定无其他被困人员,搜救和清理工作全部结束(图3:救援结束后事故现场图)。
图3:救援结束后事故现场图
三、事故伤亡及直接经济损失情况
事故共造成6人死亡,6人受伤,直接经济损失约为1115万元。
四、技术分析情况
事故调查组邀请5名相关行业领域的专家进行了技术分析,通过查阅资料、人员询问、取样送检和分析验算,形成了武汉巴登城生态旅游开发项目一期一(1)二标段项目“1·5”高大模板支撑体系坍塌事故技术分析报告,有关情况如下:
(一)现场勘验及测量结果分析
1.经核,2020年1月5日前,坍塌门楼已完成了6根框架柱的浇筑。具体情况是:2019年12月13日完成KZ5、KZ7框架柱的浇筑;2019年12月30日完成KZ6、KZ8框架柱的浇筑;2020年1月3日完成KZ2、KZ4框架柱的浇筑。
2.在对15处现场未遭破坏的脚手架立杆步距测量后,发现有9处脚手架立杆步距超出施工方案中脚手架立杆步距1.2米的要求,脚手架实际搭设不符合施工方案要求。
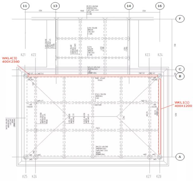
3.⑯轴线处(如图2)400x1200大梁下方双排支撑立杆、扫地杆及第一步水平杆处均缺少纵向水平杆。
(二)材料取样检测情况
事故发生后,市建设工程安全监督站组织江夏区建筑管理站、武汉巴登城投资有限公司、山某建设集团有限公司对事故现场钢管、顶托、扣件等材料进行取样,委托湖北省建筑工程质量监督检验测试中心进行检测,发现部分直角扣件抗破坏性能不合格、旋转扣件抗滑及抗破坏性能不合格、可调托撑部分抗压性能不合格、钢管弯曲试验不合格。
(三)模板支架复核及验算
1.原专项施工方案复核情况
根据原专项施工方案搭设参数表及施工工艺要求,通过分析计算坍塌区域⑯轴线处400x1200、B轴线处400x2560两根大梁模板支架立杆稳定性,原施工方案设计参数长细比及稳定性均能满足要求。
2.现场实际施工情况验算情况
现场⑯轴线处400x1200梁底下方双排支撑立杆扫地杆及第一步水平杆处均缺少纵向水平杆。按最不利受力情况考虑,步距取2600mm,钢管壁厚取现场检测平均壁厚2.4mm计算,该处立杆长细比及稳定性均不满足安全技术规范要求。
现场坡屋面混凝土浇筑未按照方案规定进行对称浇筑,产生的附加弯矩导致B轴线处400x2560梁底支撑立杆稳定性超出安全技术规范要求。
五、事故直接原因
事故调查组依据法律、法规和规定,通过调查取证和综合分析,认定造成事故的原因如下:
门楼高大模板支撑体系架体未按照施工方案要求进行搭设,⑯轴线处400x1200梁支架沿梁跨度方向扫地杆、第一步水平杆缺失,使得水平杆步距超过方案设计步距的两倍以上,致使梁支架的稳定性不满足设计承载要求,且门楼高大模板支撑体系在搭设完毕后未按要求进行验收。现场在进行浇筑时,违反专项施工方案中采用对称浇筑的要求,对门楼坡屋面采用不对称浇筑,实际产生的附加弯矩增加了B轴线处400x2560梁支架立杆承受的压力,导致该处梁支架稳定性不满足设计承载要求。现场浇筑完竖向结构(KZ1和KZ3两根框架柱)后,未按照方案中“竖向结构强度达到50%以后,再浇水平构件”的要求,随即开始梁板浇筑,由于竖向结构强度不够,B轴线处400x2560梁钢筋随支架变形下挠,将框架柱拉倒,增加了事故的规模和惨烈程度。事后,经对现场高大模板支撑体系架体材料(钢管、扣件、可调顶托)进行取样,并送检,发现部分材料不合格,导致架体承载力及稳定性低于专项方案的设计预期。上述原因叠加,导致事故发生。
六、事故间接原因
调查发现相关企业、属地及行业管理部门在日常管理和监督检查中,存在以下主要问题:
(一)企业安全生产主体责任不落实
1.施工单位山某建设集团有限公司安全管理责任落实不到位:一是未严格审核湖北强国建筑劳务有限公司相关建设施工劳务作业资质,把劳务工程发包给不具备安全生产条件的劳务单位。二是未严格按照方案要求进行高大模板支撑体系搭设,且未严格落实高大模板支撑体系安全验收程序,在高大模板支撑体系搭设完成后,未按规定组织验收。三是未严格落实高大模板支撑安全专项施工方案要求,在浇筑完门楼KZ1和KZ3两根框架柱后,在强度未达到要求的情况下即开始上部梁板的混凝土浇筑。四是未按规定对高大模板支撑体系架体材料进行查验,部分钢管、扣件、可调顶托等材料不合格,导致架体的承载力及稳定性不满足方案的设计预期。五是盲目组织现场施工,在总监理工程师未签署浇筑令的情况下违规组织浇筑施工作业。六是未按要求配备专职安全生产管理人员,项目安全员未取得相关安全管理资格。七是未按规定组织开展安全教育培训,在施工作业前未有效组织安全技术交底,相关工作台账不健全。
2.项目劳务单位湖北强国建筑劳务有限公司安全生产责任不落实:一是未取得建设施工劳务作业资质及安全生产许可证书,不具备承揽建设施工劳务工程的资格。二是在承接劳务工程后,将劳务工程转包给个人劳务队伍,存在违法转包行为。三是安全生产基础工作薄弱,未建立安全生产责任制和安全管理制度,未配备专职或者兼职的安全生产管理人员,无相关安全教育培训和安全检查工作台账。四是未对现场劳务作业过程实施管控,未督促检查劳务安全生产工作,安全管理缺位。
3.监理单位湖北天成建设工程项目管理有限公司安全监理责任不落实:一是未有效督导和检查项目监理机构工作,未合理安排和组织现场安全监理工作,项目监理人员未经监理业务培训,安全监理工作能力不足。二是未严格审核湖北强国建筑劳务有限公司相关建设施工劳务作业资质,进场前劳务单位资质把关不严。三是未严格履行危险性较大的分部分项工程的验收程序,高大模板支撑体系搭设完毕后未组织安全验收,未及时发现存在的安全隐患。四是现场安全监理和巡查检查缺位,事故当天无监理人员在岗,未及时发现和制止现场违规浇筑施工行为,未有效实施危险性较大的分部分项工程旁站监理。五是未严格开展项目日常安全监理工作,监理日志未全面记录危险性较大的分部分项工程实施情况,安全监理基础工作不扎实。
4.建设单位武汉巴登城投资有限公司安全管理责任落实不到位:一是未全面掌握高大模板支撑体系施工进度,未及时督促项目严格落实危险性较大的分部分项工程的验收程序。二是未有效开展现场巡查,未及时发现和制止现场违规浇筑施工行为。三是未按军运会期间停复工工作要求,组织施工、监理单位对项目复工前的安全生产状况进行检查,隐患排查治理不到位。
(二)属地及行业管理部门安全监管责任履行不到位
1.江夏区建筑管理站作为辖区房屋和市政基础建设工程质量及安全的监督管理部门,未严格履行安全监管责任:一是未严格落实冬季房建工程安全生产专项整治行动有关要求,未有效督促项目参建各方开展危险性较大的分部分项工程管理情况的自查自改。二是未及时发现无资质劳务单位承接项目劳务工程的问题,日常安全监督检查工作不细致。三是对项目在军运会期间的停复工抽查检查工作不到位,未能及时发现项目高大模板支撑体系安全验收未落实的问题。
2.江夏区住房和城乡建设局作为江夏区建筑管理站上级主管单位,未有效督促和指导区建筑管理站开展安全监督管理,对区建筑管理站未严格落实冬季房建工程安全生产专项整治行动实施方案的问题失察。
3.江夏区人民政府作为属地政府,安全生产属地监管责任落实不到位,未深入督促和指导辖区开展建筑行业安全生产隐患排查工作,对区住房和城乡建设局安全监管责任履行不到位的问题失察。
七、事故性质、责任区分及处理建议
经调查认定,该事故是一起较大生产安全责任事故。依据有关法律、法规和规定,事故调查组建议对事故有关单位和个人处理如下:
(一)建议移送司法机关追究刑事责任的人员
鉴于事故有关7名责任人未落实安全生产责任,造成人员伤亡惨重,财产损失重大,涉嫌刑事犯罪,建议由司法机关依法追究刑事责任。
(二)建议给予行政处罚的单位和个人
根据《安全生产法》有关规定,建议由市应急管理局对事故责任单位和主要负责人实施行政处罚。
(三)建议给予党纪政务处分的人员
对于在事故调查过程中发现的地方党委政府、行业主管部门和有关单位其他公职人员等5人在履职尽责方面的问题,已将相关线索移交武汉市纪委监委责任追究审查调查组,由纪委监委按照干部管理权限和相关责任追究的规定提出处理意见。
(四)其他处理建议
责成江夏区建筑管理站和江夏区住房和城乡建设局向江夏区人民政府作出深刻书面检查。责成江夏区人民政府向市人民政府作出深刻书面检查。
八、事故防范及整改措施
(一)深刻汲取事故教训,切实落实安全生产责任。各区、各有关部门和企业要充分认识安全生产工作的极端重要性,进一步提高政治站位,牢固树立安全生产红线意识和安全发展理念,时刻筑牢安全生产思想防线,全面贯彻落实习近平总书记关于安全生产工作的重要讲话和批示指示精神,严格按照“三个责任”和“三个必须”的要求,不折不扣抓好各项工作落实落地。要深刻汲取事故教训,把安全生产工作摆在更加突出的位置,进一步健全安全生产责任体系,完善安全生产管理制度,扎实开展安全隐患排查治理工作,采取有力措施,有效防范和减少生产安全事故,切实推动安全生产形势持续稳定好转。
(二)加强危险性较大的分部分项工程安全管理,切实落实各项安全防范措施。项目参建各方要切实加强高大模板支撑体系等危险性较大的分部分项工程安全管理,建设单位在申请办理施工许可手续时,应当提交危大工程清单及其安全管理措施等资料。施工单位应当在危大工程施工前组织工程技术人员编制专项施工方案。对于超过一定规模的危大工程,施工单位应当组织召开专家论证会对专项施工方案进行论证。对于按照规定需要验收的危大工程,施工单位、监理单位应当组织相关人员进行验收。验收合格的,经施工单位项目技术负责人及总监理工程师签字确认后,方可进入下一道工序。专项施工方案实施前,编制人员或者项目技术负责人应当向施工现场管理人员进行方案交底。监理单位应当结合危大工程专项施工方案编制监理实施细则,并对危大工程施工实施专项巡视检查。
(三)严把资质审核关,杜绝违法分包转包等行为。要强化对劳务队伍和人员的安全管理,进一步规范工程发包分包行为。要严格把好工程项目准入关,加强安全生产条件审查,严禁将劳务项目发包给不具备安全生产条件或相应资质的单位和个人。要按规定签订安全生产管理协议,进一步明确发包与承包单位安全生产管理职责。加强施工现场组织协调,强化过程管控,督促劳务人员严格按照规范要求进行作业,对作业人员违章行为要及时制止和督促整改,确保现场施工安全。
(四)强化监管执法力度,深化建筑施工领域安全专项治理。要狠抓事前防范,进一步深化建筑施工领域安全大检查、“打非治违”和隐患排查治理工作,将事故扼杀在萌芽状态。要重点加强模板支撑、起重机械、深基坑、土方开挖、脚手架搭设、拆除等危险性较大的分部分项工程作业的监管,重点防范坍塌、高处坠落、机械伤害、起重伤害、物体打击等事故,进一步督促项目参建各方加强现场隐患排查,强化现场安全措施。要重点加强对现场安全管理混乱的、事故隐患较多以及整改不力的、安全施工条件不够的、近两年发生过事故的项目和单位的监管力度,加大巡查检查频次,有效实施管控。要对安全生产失信企业实行联合惩戒,使其一处失信,处处受限。通过严厉处罚手段,在全市在建项目和施工企业中起到教育警示和威慑作用。
武汉市“1·5”较大坍塌事故调查组
2020年6月
