先给您讲一个故事:John Snow和他的「死亡地图」。
19世纪,英国伦敦,每隔三四年,就会有一个无形的杀手悄然而至,横扫整个城市,在几天之内杀死数以万计的市民,有的家庭早上还在欢声笑语,晚上已是满屋横尸。
这个恐怖的连环杀手,就是十大传染病之一:霍乱。
当时的伦敦坐拥250万人口,公共卫生系统却非常简陋,污水排放系统老旧不堪,人们居所的地下就是化粪池,整个城市臭气熏天。
当时从政府到医学界都普遍相信,污浊的空气正是瘟疫滋生的原因。于是政府大力干预卫生治理,让人们把化粪池里的排泄物倒进河里,消灭臭气,也就消灭了瘟疫。
1854年,伦敦SOHO区一名女婴染上霍乱迅速死去,两三天后,整个城市又爆发了惨烈的疫情,以这名女婴所在的家庭为中心,霍乱迅速传遍整个SOHO区,人们眼睁睁看着熟识的亲友变成冰冷的尸体,却束手无策。
这时候,在横尸遍野的SOHO区,来了一名医生,他是历史派来拯救万民的英雄。他的名字就叫John Snow。
拯救伦敦的英雄:John Snow
John Snow不是来帮助人们清理空气的,实际上,他并不相信霍乱是依靠空气传染的。他这次来到SOHO疫情区的目的,正是要冒着生命危险,向英国政府证明自己的理论:霍乱的传染源是水,政府应该把治理的重点放到水源,而不是空气上。
为了这个理论,Snow医生已经和政府理论了很久,也写了多篇研究论文,遗憾的是,空气传播理论更符合人们的直觉,没有人愿意相信他。
这一次霍乱的「罪魁祸首」,那名只有五个月大的女婴,死亡地点的不远处,就是一个公用水泵,几乎所有SOHO区的居民都会来这里打水。
Snow就是要通过这个死亡水泵,来证明他的理论。
他手里的武器,说得高大上一点,叫做数据收集和可视化,说得接地气一点,就是一双腿和一支笔。
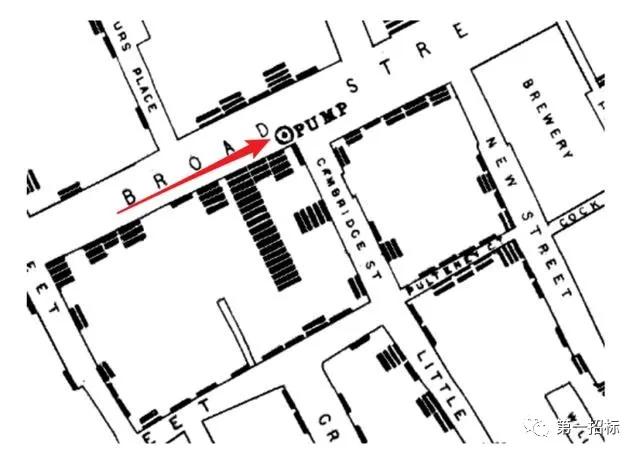
他挨家挨户的敲门,收集整个SOHO区死者所在的位置,然后绘制了下面这张著名的「死亡地图」。
在地图上,他把无关的信息去掉,用短黑线代表死亡人数,用一个小圆圈代表那个死亡水泵,水泵周围布满了黑线,其他区域则一片空白。下面是放大后的死亡地图。
John Snow拿着这张图找到政府,向他们说明自己的理论。
事情并没有预期的那么顺利,人们看到这张图,说:这还是空气传播霍乱的证据呀,毒气正是从水泵里飘出来的嘛。
Snow不服输,他又画了第二张地图。
这次他走了更远,把整个SOHO区按水泵的分布划分成不同区域,每个区域的人到对应的水泵距离都是最近的。最后再看地图,只有原来的那个水泵,像是一座孤岛,周围布满了代表死亡的黑线。
更重要的是,当他把死亡地区用线圈起来的时候,一个更清晰的线索出现了:
如果霍乱靠水泵中散发的毒气传播,那么以水泵为中心的死亡区域应该是一个均匀扩散的圆形;
而在这幅地图上,死亡区域的边界并不是一个圆形,而是不规则的形状,有的地方凸出来,有的地方凹进去,而这些凹凸,恰好就是人们在错综复杂的街道上步行打水的路线。
看到第二张地图,英国政府终于醒悟:他们长久以来的努力方向彻底错了,水才是霍乱的根源。
他们迅速转变战略方向,先是拆除了那座水泵的把手,向市民宣传喝水之前一定要烧开,然后开始大力建立地下水道。
1866年之后,英国再没有大规模爆发霍乱,各大报纸将靠一己之力说服整个政府的John Snow称为霍乱终结者。
直到今天,在伦敦的Broadwick Street,依然伫立着一个水泵,它是当年那个「死亡水泵」的复刻品,与它隔街相望的,就是著名的JohnSnow酒吧。
这是伦敦人民对这位医生的崇高致敬。
BIMBOX的观点:用最简单的工具,挖掘不太复杂的数据,用可视化的方式解决具体的问题。
1、首先,他的思想很先进,在那个时代,没有人想到用数据和科学论证的方法来研究传染病,Snow是当之无愧的开拓者;
2、其次,他并没有使用什么高深的工具,就是一支笔,和一张地图。
3、最后,也是最重要的,这个故事告诉我们,什么样的数据才能产生价值:霍乱的死亡人数和水源的位置不是秘密,任何人都知道,但只有当你用一种人人看得懂的方式把数据呈现出来的时候,它才能真正解决问题。
免责声明:以上内容来源BIMBOX,如有疑义请联系删除。
